Druh stavby: Občianska vybavenosť
Charakter stavby: Interiér
Poloha: Praha, CZ
Stupeň: Návrh
Obdobie: jar 2025
V roku 2015 sme pre tohto klienta navrhli kanceláriu v centre Bratislavy. Sme radi, že sa na nás po 10 rokoch opäť obrátil, s podobným zadaním, no v susedných Čechách.

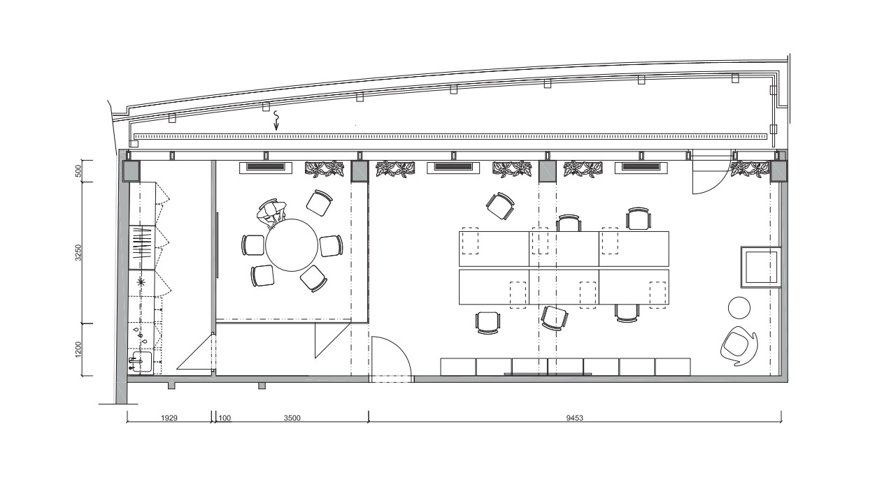
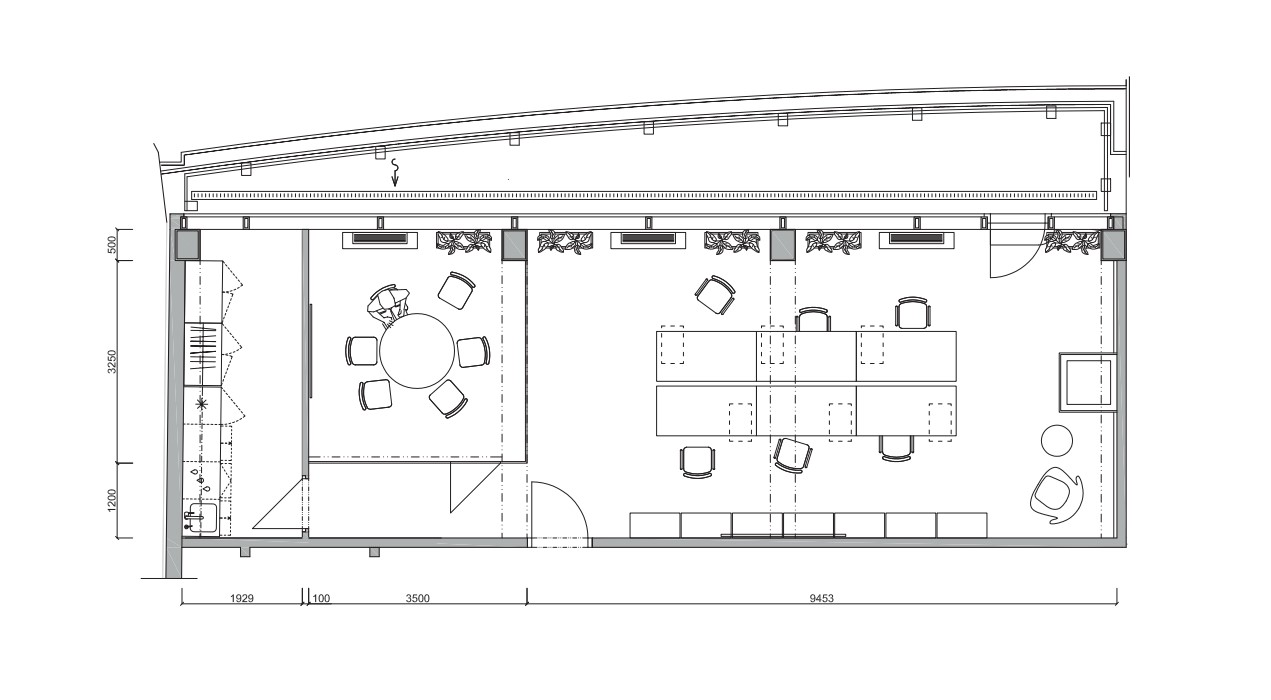
Inšpiráciou pre tento návrh bol tok informácií, ktorý znázorňujú lineárne svietidlá v lamelovom obklade a podhľade. Dáta vychádzajú z centrálneho servera a „tečú“ do monitorov pracovníkov.
Priestor je jednoducho členený na hlavnú kancelársku časť, zasadačku oddelenú sklenými stenami a zázemie. Toto členenie sa odráža aj do kobercového vzoru – akej si mapy kancelárie. Nábytok v orechovej dyhe, leštenom hliníku a tmavé doplnky podčiarkujú prémiový pocit z priestoru.
Návrh je v štádiu realizácie.


































sledujte nás